UNDERPEENING STEEL PIPE PILE METHOD
アンダーピーニング鋼管杭工法
アンダーピーニング鋼管杭工法とは
地盤調査後、明確な支持層※を確認し、地震が来ても地中で鋼管同士がずれないよう金属溶接か専用ジョイントを用いてしっかり固定し支持層まで到達させる
当社では国交省レポートを元に専属建築士が1.5m以上の厚みのある平均N値15以上の非液状化層を支持層と指定しています。
地下水内にある粒度の粗い砂質地盤では、砂が水で締まり、杭周辺の摩擦で支持地盤に到達しない可能性大 要 杭試験工事
支持層有り

非液状化層に1.5m以上の厚みがある、平均N値15以上の明確な支持地盤が見られるため、鋼管杭工法によるお家の傾き直し工事が適用出来ます。
不適格支持層

液状化層内に地震時に崩壊リスクのある薄く硬い地盤があり、家の荷重だけでは、支持層まで到達せず地盤崩壊して再沈下するリスクが非常に大きいです。
アンダーピーニング鋼管杭工法の流れ

施工の流れ①
- 壁やお庭が汚れないよう養生を行います。
- お家の重さを十分に支えられる太さの鋼管を圧入するため(鋼管直径11.4cm)お家の基礎下の地面を掘ります。

施工の流れ②
- 地盤調査にて特定した支持層に鋼管杭が到達するまで、溶接や専用継ぎ手によって杭同士を一体化接続を行い、圧力を掛けて沈めていきます。
面積の小さいコンクリートブロックでは、圧力に耐えられず地中で崩壊します。 またブロックをただ積み重ねただけなので、約2m以上はまっすぐ入らず、非液状化支持層に到達することはありません。

施工の流れ③
- 電動油圧ポンプの圧力計、傾きの中間修正数値、お家の様子等を常に確認しながら、複数台電動油圧ジャッキの圧力を均等に分散させて、慎重にお家の傾きをミリ単位で新築基準以上の水平状態まで傾斜調整いたします。
- 傾斜調整完了後は、お客様にご確認いただきながら屋内計測を行います。

施工の流れ④
- 支持鋼材を設置し、お家が持ち上がった事によって生じた隙間をグラウト材充填により、一体化完全固定し工事完了となります。
- 当社では、お家が持ち上がる事によって切れてしまう上下水配管仮接続復旧、新築以上に水平になった事によって生じる建具不具合調整を、出来る限りサービスで行っております。
アンダーピーニング鋼管杭工法の特徴
- 当社指定の明確な支持層まで打ち込むことによって、確実な家の傾き直しが出来ます
- ベタ基礎、布基礎、杭基礎 様々な基礎で対応可能
- 地盤ロック工法による地盤改良併用によって液状化対策を施した支持層を形成出来ます
注意
鋼管径が太いと摩擦で深く入りません。
当社は直径114ミリを基本としますが、他社で直径300ミリを使用し、浅く打って安く出来ると言う業者がいます。
鋼管杭は明確な支持層に到達させないと、高額で再沈下リスクが高いだけの工事になります。
事前に鋼管径や、杭同士の接続方法、支持層についての認識を確認しましょう。
- 鋼管杭工法の注意事項は以下に記載
アンダーピーニング鋼管杭工法のギャラリー

必ず、地盤調査を行い当社指定支持層を指定

先端の尖った杭を使用・杭同士を溶接接続
アンダーピーニング鋼管杭工法の施工事例

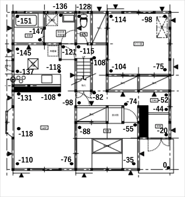
アンダーピーニング鋼管杭打設箇所
数字(黒):工事前傾き
数字(赤):工事後レベル

Before

After
費用と注意事項
- 工期が長い
- 支持層の指定が甘いと再沈下するので、専門家による地盤の見極めが必要
- 工事費用が他工法と比較して高い
- 建て替え時の撤去の問題がある
能登地震で液状化被害の大きかった特定地域おいて、新築時に5mまで杭を打設していても傾いてしまっているお家が何軒もありました。
その地域において鋼管試験杭打設工事を行った結果、家の重さでは砂の摩擦によって、2.5m程度しか杭を打設出来なかったので、
一部地域においては、相当条件が合わない限り、アンダーピーニング鋼管杭工法を10年保証対象外工事とし、
地盤ロック工法や、アンダーピーニングスーパー耐圧盤工法と地盤ロック工法の併用工法をおすすめしております。